彩绘达创意室内设计 | 定制专属空间美学 商业/住宅全案设计服务商
图标

欢迎来到彩绘达室内设计:





客户案例

CASE STUDY
当前位置: 首页 > 客户案例

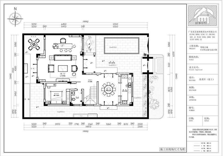
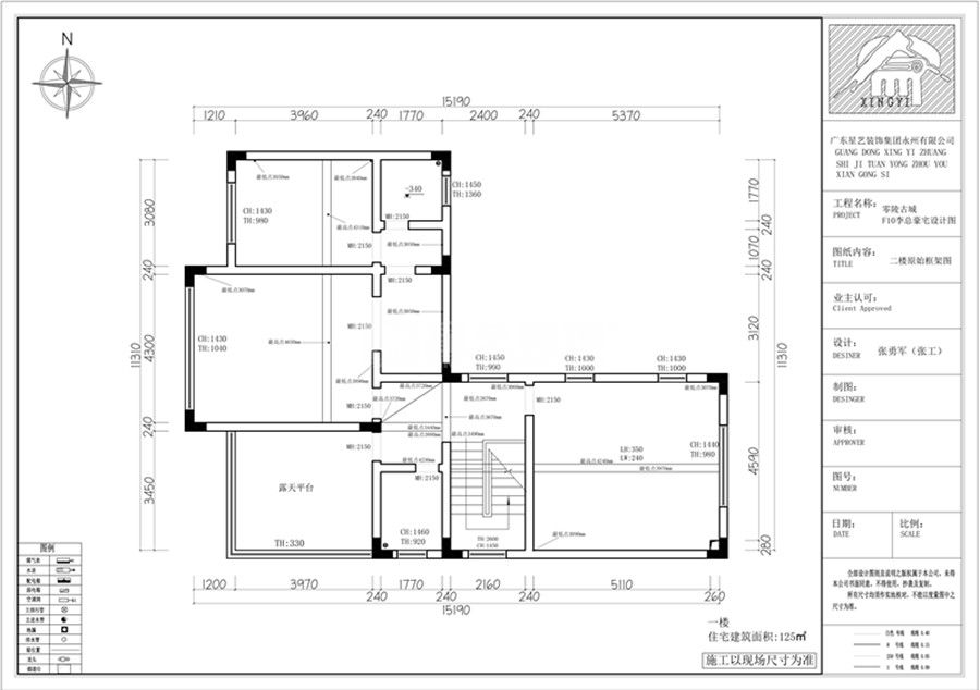
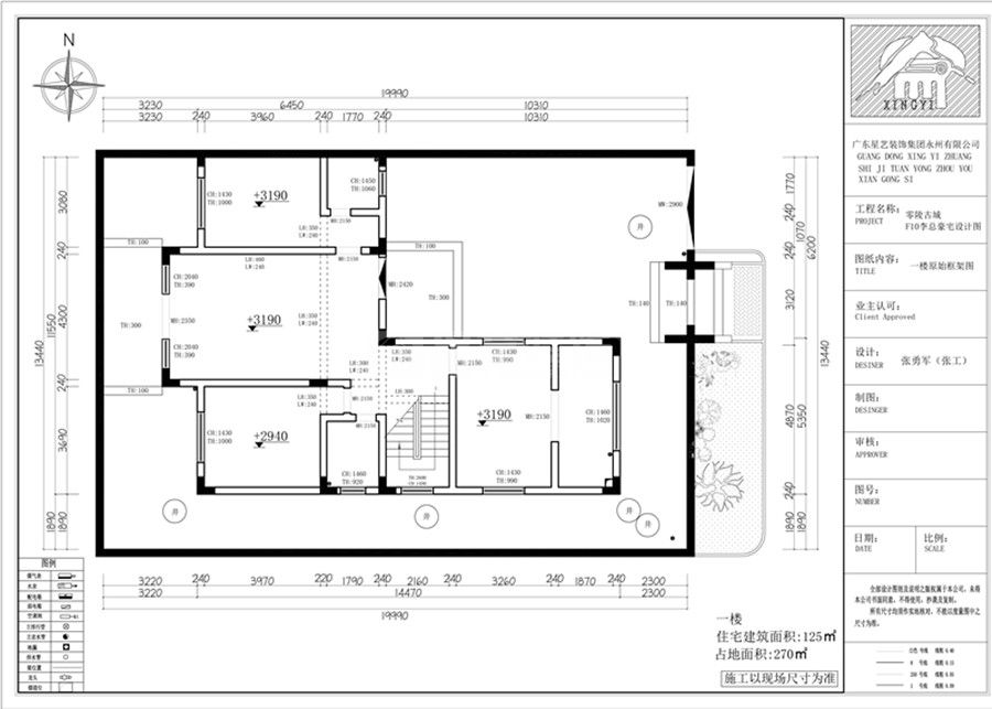
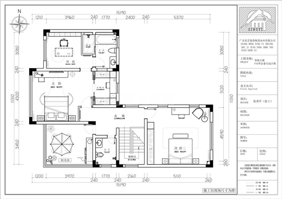
零陵古城别墅

发布时间:2026/02/27    浏览次数:
设计理念
在这个快节奏的时代,每个人都渴望放慢脚步,寻找一份内心的宁静与美好。
客厅
零陵古城别墅(图1) 零陵古城别墅(图2) 零陵古城别墅(图3) 零陵古城别墅(图4) 零陵古城别墅(图5)
客厅
5张
餐厅
零陵古城别墅(图6)
餐厅
1张
卧室
零陵古城别墅(图7)
卧室
1张
主人房
零陵古城别墅(图8) 零陵古城别墅(图9)
主人房
2张
书房
零陵古城别墅(图10)
书房
1张
长辈房
零陵古城别墅(图11)
长辈房
1张
案例展示
零陵古城别墅(图12) 零陵古城别墅(图13) 零陵古城别墅(图14) 零陵古城别墅(图15)
案例展示
4张