室内设计提升_室内设计布局_室内设计房间布局优化 - 辰飞雨彩绘达室内设计
欢迎来到彩绘达室内设计:
设为首页
加入收藏
我
的
站
点
图
网站首页
关于我们
公司简介
企业文化
产品展示
第一系列-简约风产品展示
第二系列-中国风
第三系列-实木风
第四系列-空间美产品
新闻资讯
公司动态
行业新闻
客户案例
招纳贤士
联系我们
免责声明
客户案例
CASE STUDY
当前位置:
首页
>
客户案例
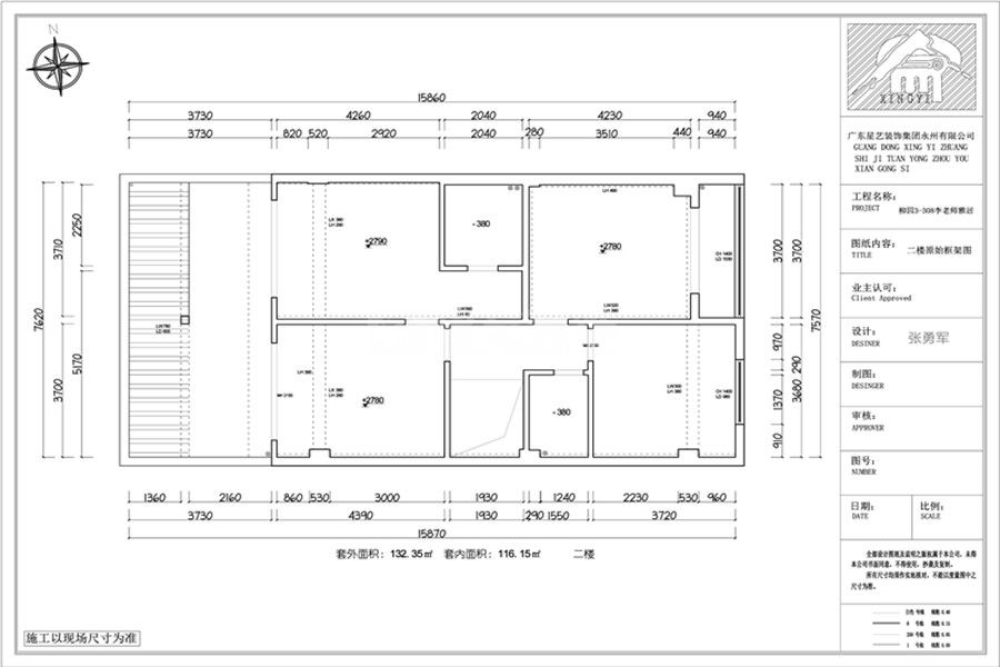
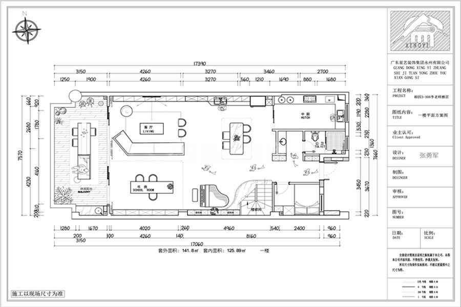
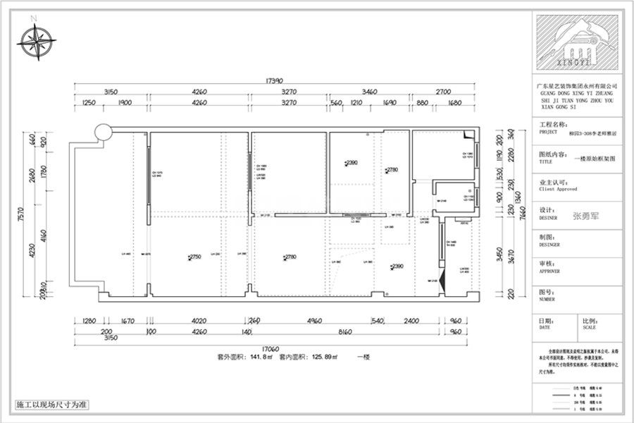
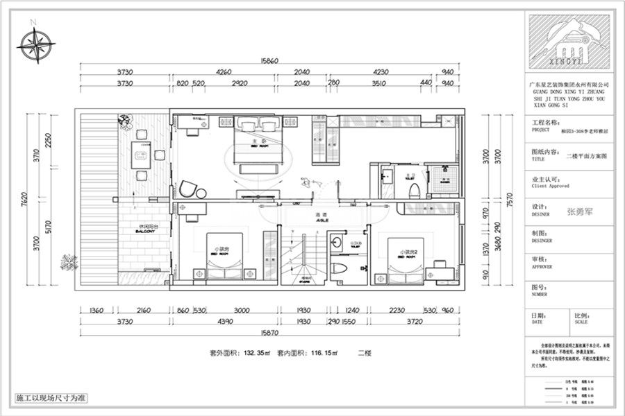
柳园
发布时间:2026/02/27 浏览次数:
设计理念
极简轻奢设计追求的是简洁而不简单,强调在有限的元素中寻找最佳的组合方式,达到最佳的设计效果。在设计中注重功能的合理性、空间的有效利用以及审美与舒适度的结合。同时,通过采用优质的材料和精细的工艺,让设计更具有品质感和奢华感。
客厅
客厅
3张
餐厅
餐厅
1张
洗手间
洗手间
1张
主人房
主人房
2张
书房
书房
2张
案例展示
案例展示
4张
↑
上一篇 : 山水之间
↓
下一篇 : 致简