室内设计提升_室内设计布局_室内设计房间布局优化 - 辰飞雨彩绘达室内设计
欢迎来到彩绘达室内设计:
设为首页
加入收藏
我
的
站
点
图
网站首页
关于我们
公司简介
企业文化
产品展示
第一系列-简约风产品展示
第二系列-中国风
第三系列-实木风
第四系列-空间美产品
新闻资讯
公司动态
行业新闻
客户案例
招纳贤士
联系我们
免责声明
客户案例
CASE STUDY
当前位置:
首页
>
客户案例
金盘世界城
发布时间:2026/02/28 浏览次数:
设计理念
我们所说的“美式” 家具 ,一般指Federal Style (联邦式 风格)。 邦式家具与新古典主义家具相似,后者曾于1760年以后风行欧洲。顾名思义是来自于美国的装修和装饰风格。是殖民地风格中最著名的代表风格,某种意义上已经成了殖民地风格的代名词.
客厅
客厅
1张
餐厅
餐厅
1张
卧室
卧室
3张
厨房
厨房
1张
主人房
主人房
1张
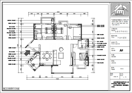
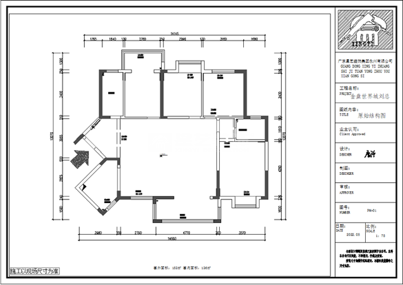
案例展示
案例展示
2张
↑
上一篇 : 将心“安”
↓
下一篇 : 汕头|铂悦府