本案业主是位事业有成、有着高品质生活的年轻人,喜欢以简约、实用但又不失美观的家居环境,依托于此需求,设计师整体设计以黑白灰为主色调,加入棕色增加空间温度,不复杂的颜色,利落的线条,描绘出房屋主人的居住态度。

简约实用,不失美观
个性低调不张扬
装修风格:现代黑白风格
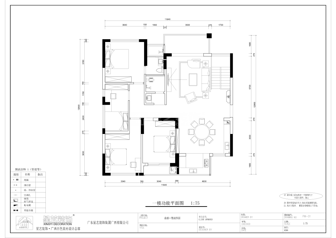
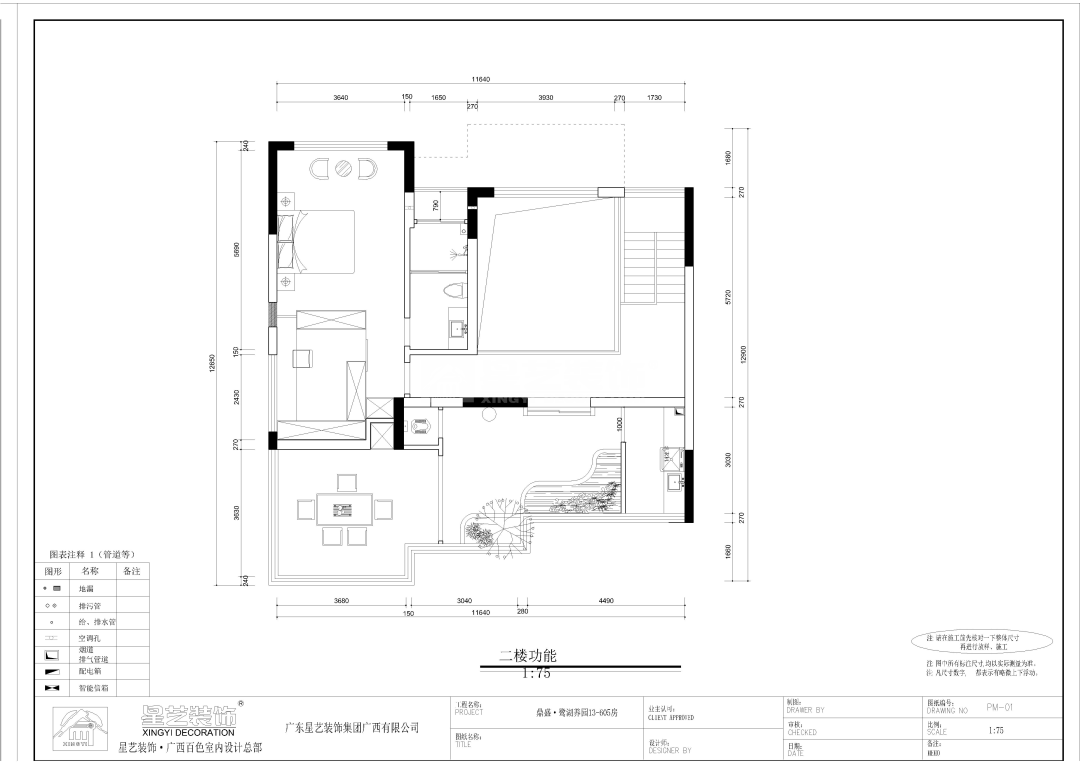
建筑面积:约120㎡
空间格局:六室两厅
设计师:余冰(百色星艺装饰)
项目位置:麓湖养园
平面户型图
一层平面图

二层平面图

个性低调不张扬,永不过时的黑白灰经典配色,加入棕色的点缀,让灰色调的空间多了一丝活力。
起居室
挑高的客厅打造出别墅的既视感,有层次的吊顶配合整块的电视墙面岩板,使整个空间更加宽敞明亮,柔软的沙发与圆茶桌增加了时尚的格调,以品质生活追求赋予空间的奢华。不复杂的颜色,利落的线条,描绘出房屋主人的居住态度。

餐厅

双餐厅的设计,考虑到业主家人多,逢年过节都有聚餐需求,空间的合理化设计,敞亮不拥挤,可容纳多人玩乐。

中西厨一体式布局,墙面收纳柜整齐统一,嵌入大型橱柜,搭配餐桌一起使用刚刚好。
——
装修就是把喜欢的一切
带进你的房子
最后希望每个努力的人
都能住进自己喜欢的家