简洁优雅的轻法奶油风,
扑面而来的艺术气息,让人心醉神往。
简约、又不失精致,温暖、柔和、温馨。
让人感觉仿佛置身于一杯香醇的拿铁中。

「本案基本情况」
装修风格:轻法式奶油风
建筑面积:约100㎡
空间格局:复式
设计师:曾容(南京星艺装饰)
项目位置:汇锦国际
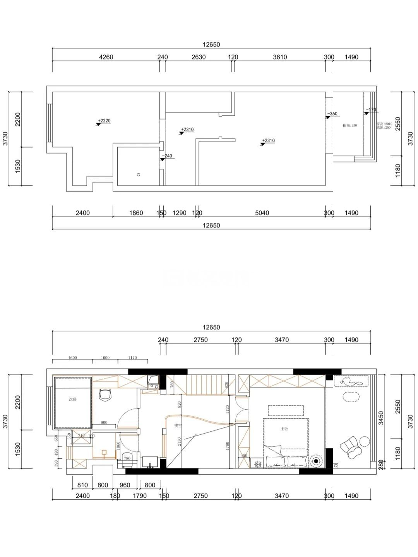
平面户型图
业主是一位有名的模特,对品质要求非常之高。小美美(业主)装修之初,选了两家一线装修品牌作对比,两家的工程造价相差不大,但我们的设计费是高于别家的。而本案设计师更专业的态度和更贴心的服务打动了小美美,让她选择了星艺装饰。
一层平面图

本案房子分为上下两层,实用面积在100m²左右。设计师将一楼规划为客厅,餐厅及公共区域,二楼则规划为睡眠空间,动线清晰合理。
二层平面图

整个施工过程的配合相当默契,最终的落地效果近乎100%呈现,让所有人都非常满意。直至现在,小美美仍然在替我们免费宣传,她认为:“好的公司和好的设计师,就应该让所有人看见”。
01 越简单越舒适

色彩上采用奶油色来打造空间的主色调,充满了浪漫的气息。明装无主灯的设计使空间更加极简干净,视觉效果更加开阔。
如何打造轻法奶油风?
明装无主灯 . 贝壳风铃灯
地板鱼骨拼通铺 .悬浮地台
B&B模块沙发. 欧式石膏线条
拱形门廊 . 隐藏式淋浴花洒

色彩上采用奶油色来打造空间的主色调,充满了浪漫的气息。明装无主灯的设计使空间更加极简干净,视觉效果更加开阔。

地板采用鱼骨拼通铺,所谓鱼骨拼,就是将长方形木板切成45°角的平行四边形,然后沿中缝对齐铺贴,铺好后的地板线条看起来就像一根鱼骨一般,具有强烈的几何立体感,在狭窄的空间会带来无限延展的错觉。

02 生活本该惊喜
人生充满奇遇
有房子里的故事
也有不期而遇的惊喜
充满期待,惊喜常在。

房子里的所有垭口与廊柱,都做了弧度造型和饰面板包裹,同时,吊顶没有做复杂的叠级造型,简单的利用欧式石膏线条装饰,让人仿佛置于上世纪宫廷之中,王子与公主的故事就在这里开端。

法式奶油风是梦幻公主卧室的不二之选,以淡雅的奶油色彩、优美的线条和华丽的装饰为特点,给人一种浪漫、温馨的感觉。搭配精致的花纹线条和优雅的法式家具增加卧室的浪漫氛围。

隐藏式淋浴花洒让整个浴室看起来更加整洁,随心所欲地调节水温和水流,可以带来更加舒适的淋浴体验。
——
世间的嘈杂淹没了许多自我
却无法遮蔽最初的热爱
学会自洽,找回内心的浪漫