家
让我们感知彼此之间的亲情
这世间最纯粹的美好

交织梦幻,沉淀优雅
领略尘世间的美好
装修风格:轻法式+奶油风
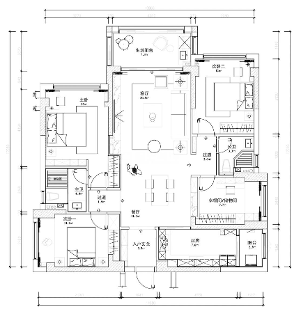
建筑面积:约167㎡
空间格局:三室两厅两卫
设计师:刘梅梅(汕头星艺装饰)
项目位置:御海天禧
平面户型图

现代装饰美学,构筑起一个容纳多元而丰富的精神世界的自由空间,将悦己的哲思浸入生活,以从容不迫的姿态表达对生活的自我主张。
设计为笔,岁月成诗,本案在设计师的点化下,将对家的期盼与畅想,融入到屋舍的每一隅,让生活在时光的褶皱里自在舞动。
起居室

沙发伫立一旁,等待着主人归来,为他涤去一整日的疲惫。灯光照射下搭配流畅的线条布局,摒弃繁杂的装饰,打造开阔透亮的休闲空间。

客厅的开放性与社交性,激发出设计的规划理念。预留的空间动线搭配敞亮的采光,彰显着大气优雅的高贵气韵,形成别致的居家名片。

餐厅

美味在这里享用,有了美食与人的加入,烟火气息带着幸福的滋味,空间的情绪也有了多样的变化,四季更迭,不变的是家人的笑容。
主卧
延续空间的设计主调,营造内敛舒适的氛围,自然与生活碰撞,交织出静好的温柔旋律,勾勒自由惬意的温馨时光。

次卧
这个新落成的家居空间,简单、安适、宁静,不饱满的状态,为生活留有余地,也为精神留有余地。

通过各种材质铺陈一处静谧舒适的眠憩空间,将所有外放的情绪收敛,回归生活本真的场域,品味生活的真谛与情趣。

书房
关于美好生活的想象,总藏在家中的每一处角落,点线面构成的空间,色彩营造的清爽氛围,为疲惫生活解乏,温柔岁月,疗愈心灵。
书房是心灵休憩的地方,是精神粮食的储藏间,坐在书桌旁,轻轻翻起一页书,感受微风吹过耳边,享受安静舒适时刻。
----------
光影执笔,绘臻美之境
每一种被围合
皆是一个特立独行的世界