空间的灵魂不在于结构的精妙
与极具创意的表现形式
而是能够在最平实的生活中
诞生出令人惊叹的情感联系

装修风格:现代简约
建筑面积:150平
设计师:玉林星艺装饰梁柏诚
项目位置:东方湖岸
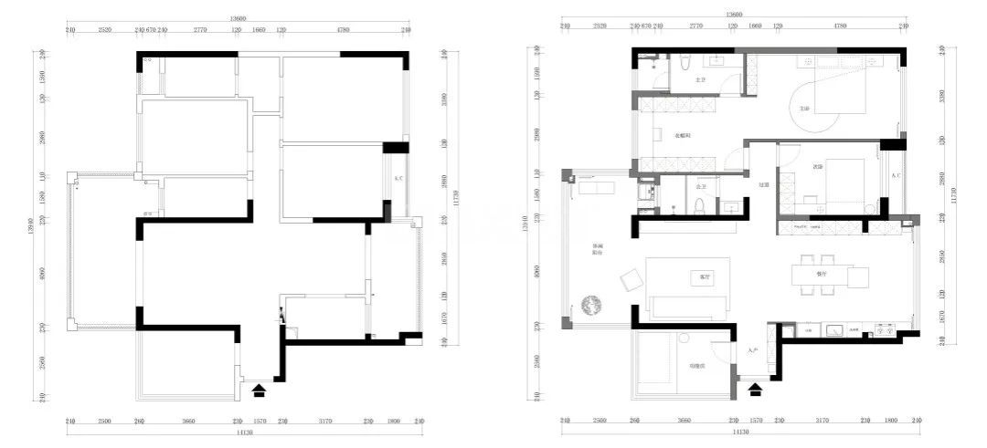
户型设计

房子户型方正,使用面积大,空间充足。只是厨房及餐厅面积比例不协调,在整个户型上比例不协调。
业主喜欢开放式厨房,在南阳台面积够大足够满足晾晒功能的基础上,将北阳台墙体拆除,厨房、餐厅、北阳台融为一体,可使用操作面积更宽敞。主卧则是根据业主的家庭成员需求及生活需求,将两间房间打通,整体主卧成卧室+衣帽间+主卫的套间形式,满足了业主的个人隐私空间和储藏空间的需要。
客厅


整个空间以浅色调为主,硬装并没有过多强调造型,通过天地墙一体化设计,搭配软装,主次分明,给人以温馨舒适的感觉。

软装也以柔软的材质为主,沙发,边椅,抱枕,无不透露着温柔的触感,茶几采用大理石纹路,精致的造型,在空间中起到点睛之笔。
餐厅

厨房餐厅采用的是开放式厨房的设计,将北阳台打通纳入到餐厅空间,整体宽敞不少,还能满足业主对岛台的需求,一整面墙的餐边柜更是将收纳做到极致,告别了凌乱的餐厅。
定制的大理石岛台搭配原木色桌面,透明亚克力的桌腿也很精致。
阳台

阳台窗帘只需要透光不透影的纱帘,即可创造满满的氛围感,摆上一棵水养的植物,轻便的健身器材,看着窗外四季变换的景色,好像一幅画卷也融入到房子里。
主卧

主卧是将两间卧室打通成一个大套间,因为喜欢和修勾修喵亲近的生活,选购的是矮脚床,主打就是随性的生活!精美的包包和时尚的衣服也都井井有条放置在衣柜里,小仙女们谁能拒绝这样的衣帽间呢?

——
美学也得有温度
这样的居住才会更显人性化