室内设计提升_室内设计布局_室内设计房间布局优化 - 辰飞雨彩绘达室内设计
欢迎来到彩绘达室内设计:
设为首页
加入收藏
我
的
站
点
图
网站首页
关于我们
公司简介
企业文化
产品展示
第一系列-简约风产品展示
第二系列-中国风
第三系列-实木风
第四系列-空间美产品
新闻资讯
公司动态
行业新闻
客户案例
招纳贤士
联系我们
免责声明
客户案例
CASE STUDY
当前位置:
首页
>
客户案例
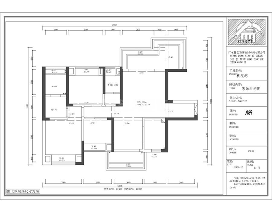
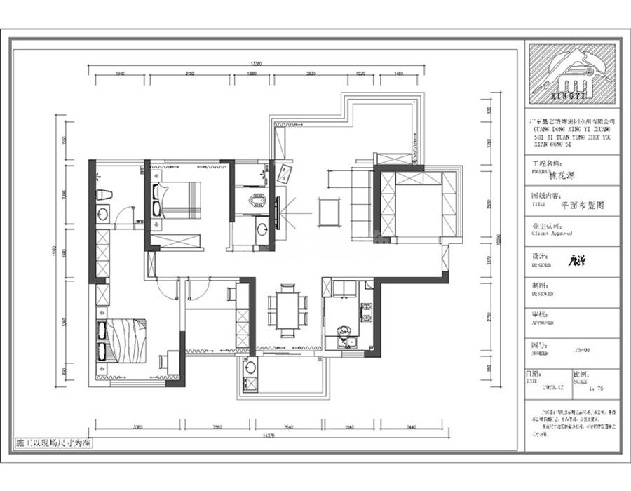
桃花源
发布时间:2026/02/28 浏览次数:
设计理念
设计是一种融合了古典与现代元素的设计风格,它通过色彩、材质、家具陈设、空间布局和装饰元素的运用,营造出一种独特而优雅的复古氛围。
客厅
客厅
2张
餐厅
餐厅
1张
卧室
卧室
2张
玄关
玄关
1张
洗手间
洗手间
2张
主人房
主人房
1张
案例展示
案例展示
2张
↑
上一篇 : 汕头|铂悦府
↓
下一篇 : 嘉隆云宸魏女士