室内设计提升_室内设计布局_室内设计房间布局优化 - 辰飞雨彩绘达室内设计
欢迎来到彩绘达室内设计:
设为首页
加入收藏
我
的
站
点
图
网站首页
关于我们
公司简介
企业文化
产品展示
第一系列-简约风产品展示
第二系列-中国风
第三系列-实木风
第四系列-空间美产品
新闻资讯
公司动态
行业新闻
客户案例
招纳贤士
联系我们
免责声明
客户案例
CASE STUDY
当前位置:
首页
>
客户案例
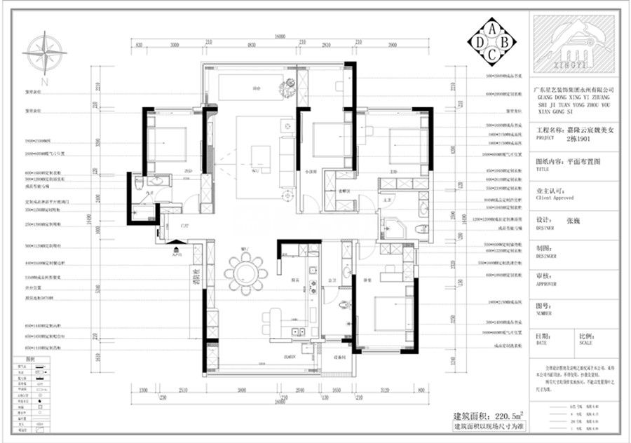
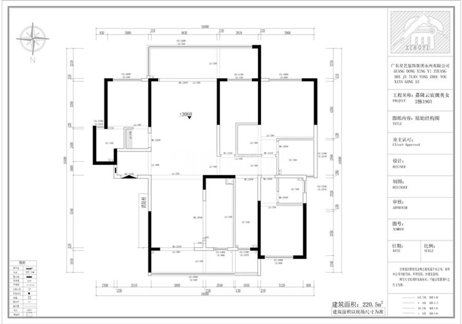
嘉隆云宸魏女士
发布时间:2026/02/28 浏览次数:
设计理念
设计注重空间的布局和功能的合理性。设计时要充分考虑空间的使用功能和人的行为习惯,合理规划空间布局,使空间更加流畅和舒适。同时,要注重细节的设计,如照明、储物、装饰等,使空间更加完善和实用。
客厅
客厅
1张
餐厅
餐厅
2张
卧室
卧室
1张
厨房
厨房
1张
玄关
玄关
1张
儿童房
儿童房
1张
主人房
主人房
1张
长辈房
长辈房
1张
案例展示
案例展示
2张
↑
上一篇 : 桃花源
↓
下一篇 : 天玺湾